Modern Uholník
Účelný a tvorivý prvok
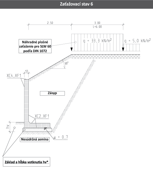
Betónový uholník Elko® je praktickým a rýchlym riešením pre spevnenie svahu ako spoľahlivý oporný múr v rôznych terénnych podmienkach. Uholníky sú dizajnovo atraktívne a pritom ale nevylučujú funkčné aspekty a požiadavky na konštrukčnú rôznorodosť. V akýchkoľvek lokálnych podmienkach vo vzťahu k výške, zaťaženiu a miestnym pomerom ponúkajú vždy najvýhodnejšie riešenie.














pohľadový betón





šírka 50 cm, zaťažovací stav 1, 2
šírka 100 cm, zaťažovací stav 1, 2
roh 90° jednodielny, zaťažovací stav 1, 2















Viac
Viac




